5 / 10

当前位置: 首页 » 小区效果图 » 小区效果图 »新世界花园292平米复式新古典风格装修效果图 日期:2015-03-03    点击:2   

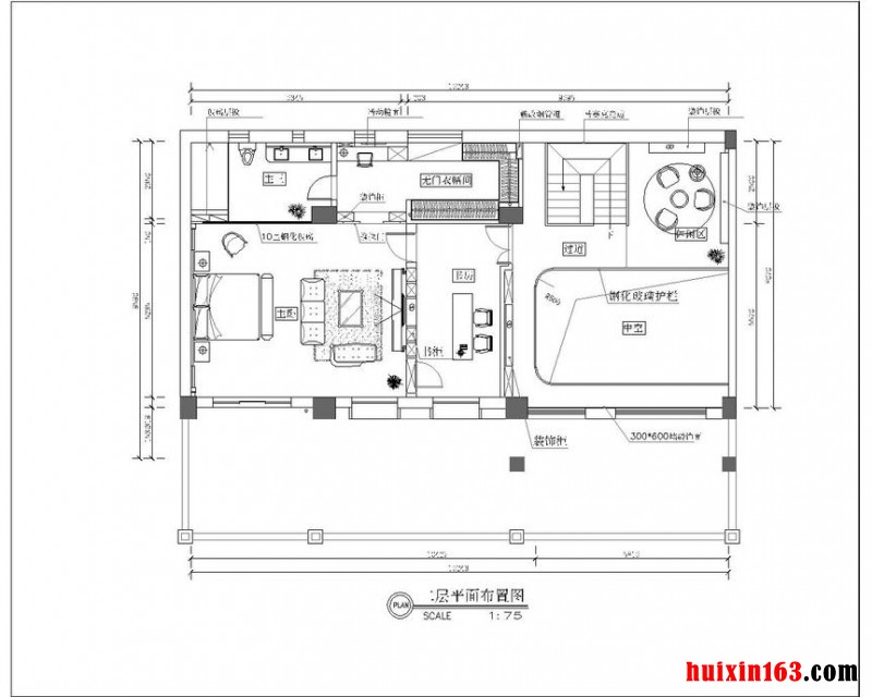
新世界花园292平米复式新古典风格装修效果图--平面图
小区效果图说明
   新世界花园位于海南省海口市,项目所处地理位置优越,周边交通便利,相关配套设施完善,适宜生活居住。本案所示是一套292平米复式新古典风格装修效果图,装修预算约为45万元人民币,工程类型为半包。此套设计总体基调以淡雅别致紫色为主体,通体弥漫着一种神秘有趣的气息,一丝丝神秘的感情色彩给整个案例空间增加许多浪漫的激情元素。设计师非常巧妙的将现代的生活理念和古典的文化品位结合在了一起,采用古典元素结合现代建材与家居配饰相互配合的处理方法,同时依托有利的空间和户型的优势,对复式的具体户型特点进行了深入分析,将新式古典的装修要素以适当的方式融入进整体设计当中,努力营造出了家的温馨舒适和总体品位内涵。
更多»推荐小区效果图
 
0条 [查看全部]  相关评论